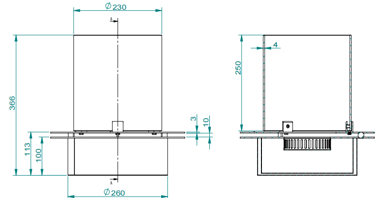
DIVINA FIRE Bruciatore tondo d.35 da 3 lt
Bruciatore da 3 lt
Dimensioni esterne: d. 35 x H 36 cm
Con lana di roccia
Acciaio inox di qualità superiore
Vetro alta temperatura spesso 4 mm 400°C
Tempo di combustione: 5 – 6 h
Volume riscaldabile 30-40 mt2
Installazione: incasso
Il camino a bioetanolo riscalda davvero?
Certo, come tutte le fiamme vere, i bruciatori per biocaminetti, emanano calore vero! Normalmente un litro di bioetanolo sviluppa circa dai 3 ai 4Kw/h dipendente dal suo tipo di bruciatore, dal momento della sua combustione. Inoltre il caminetto a bioetanolo, ha un rendimento del 100% perchè non c’è dispersione di calore attraverso la canna fumaria e tutto il calore prodotto rimane nella stanza.
Quanta superficie riscaldano i camini a bioetanolo?
I caminetti a bioetanolo in media possono espandere calore fino a un’area di circa 20-30mq, a seconda della capacità del bruciatore e dell’intensità della fiamma. Va comunque tenuto presente che i caminetti a bioetanolo non vanno concepiti come unica fonte di riscaldamento all’interno di un alloggio: sono prima di tutto un complemento d’arredo che, emanando fuoco vivo, riscaldano anche l’ambiente, oltre a creare una piacevole atmosfera.
Quanto consumano i caminetti a bioetanolo?
II consumi dei biocaminetti sono indicativi, poichè dipende dai vari modelli, dalla capienza del bruciatore e dalla potenza della fiamma a seconda del bruciatore (che in molti modelli è regolabile). Mediamente, un biocaminetto che rimane acceso per 3 o 4 ore al giorno a fiamma massima, consuma 5 litri di bioetanolo alla settimana, se invece viene mantenuta la fiamma al minimo, 1 Lt. di Bioetanolo dura anche fino a 10 ore.
E’ necessaria un’autorizzazione per l’utilizzo del biocaminetto?
No. Come tutti i focolari liberi non è soggetto ad alcuna legislazione, né necessita di permessi speciali.
Serve la canna fumaria per il caminetto a bioetanolo?
I nostri caminetti a bioetanolo, non necessitano di canna fumaria perché la combustione del bioetanolo non produce sostanze tossiche né odori né fumi che devono essere portati fuori attraverso la canna fumaria.
I caminetti a bioetanolo sono indipendenti?
Sono dei mobili trasportabili in un trasloco, non necessitano di collegamenti fissi né per l’alimentazione, né per lo scarico non avendo canna fumaria.
Come si pulisce un Bio Caminetto?
I biocaminetti non hanno bisogno di pulizia da cenere, fuliggine, ecc. Si puliscono come tutti gli altri mobili.
I caminetti a bioetanolo, necessitano di manutenzione?
I caminetti a bioetanolo non necessitano di manutenzione non essendoci valvole, ventole, o altre parti in movimento che possono usurarsi nel tempo.





















Recensioni
Ancora non ci sono recensioni.